Badrenovierung nach Plan
Vom Wunsch über den Entwurf zum Ziel: Der Badplaner erstellt gemeinsam mit den Kunden einen Plan und koordiniert danach sämtliche Gewerke. Er sorgt für einen reibungslosen Ablauf und die termingerechte Fertigstellung. Er ist derjenige, der für Sie alles regelt – von der Erstellung der ersten Planskizzen bis zur Ausführung der Arbeiten. Sie können sich derweil entspannt zurücklehnen und sich auf Ihr neues Badezimmer freuen.
Blaskovich Malerwerkstätte
Ulmer Straße 78
89537 Giengen
Mit der Auswahl eines kompetenten Badexperten stellen Sie sicher, dass Ihr neues Badezimmer von vorne bis hinten klug geplant wird.

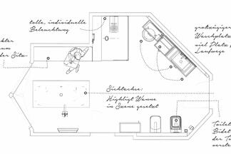
Planung vom Profi
Unsere Badexperten erstellen Pläne, auf deren Grundlage das Bad ganzheitlich gestaltet werden kann. Am Ende steht ein Bad, das niemals von der Stange ist.

Schrittweise zum Bad
Von der ersten Idee zum Plan und vom Plan in die Umsetzung – Schritt für Schritt kommt man mit unseren Fachleuten zum Traumbad.

Badezimmer aus einer Hand
Wir planen, organisieren und koordinieren sämtliche Arbeiten aller Gewerke. Der Vorteil für Sie: Alles kommt aus einer Hand.

Barrierefreiheit
Ein barrierefreies und leicht zugängliches Badezimmer steigert die Lebensqualität. Rutsch- und trittfeste Oberflächen sind daher ebenso ein Thema wie Haltegriffe und die richtige Höhe von WC oder Waschplatz.

Die Badprofis
Unsere Badplaner zeichnet eine Gabe aus, die häufig unterschätzt wird: Die Kunst des Zuhörens. Nur so erfahren wir, was Kunden wirklich wünschen – und können es zielgenau umsetzen.

Was ein Bad wirklich kostet
Jetzt erfahren, was sich hinter Begriffen wie Economy-Bad, Komfort-Bad oder Premium-Bad verbirgt und was das für Ihre Budgetplanung bedeutet.

Staubschutz
Damit sich Ihre Baustelle gar nicht wie eine Baustelle anfühlt, nutzen wir die neuesten Geräte und Schutzvorrichtungen für eine staubarme Badsanierung.

Pflegehinweise
Für ein blankes, hygienisches Badezimmer braucht es wenige Zutaten. Wir haben für Sie die wichtigsten Pflegetipps zusammengetragen.
Weitere Informationen zum Thema Badgestaltung:

Mein eigener Wohlfühl-Stil
Alles ist eine Frage des Stils. Auch im Badezimmer. Über die Funktionalität hinaus, möchte sich doch jeder in seinem Bad zu Hause fühlen.

Rund oder eckig?
Dass Farben unsere Gefühle beeinflussen, ist schon lange erwiesen. Doch auch Formen erzeugen Emotionen!

Planung vom Profi
Unsere Badexperten erstellen Pläne, auf deren Grundlage das Bad gestaltet werden kann. Am Ende steht ein Bad, das niemals von der Stange ist.

Barrierefreies Badeglück
Was versteckt sich eigentlich hinter dem Schlagwort "Barrierefreiheit"? Und was bedeutet "barrierefrei" in der Badplanung?

Wellness-Oase für zu Hause
Entspannen, loslassen, einfach mal abschalten: So machen Sie Ihr Bad zu einer echten Wellness-Oase. Jetzt entdecken!

Badideen vom Profi
Ist ihr altes Badezimmer klein, verwinkelt, kompliziert? Egal – ein guter Badplaner macht daraus ein Traumbad.

Für die Gäste nur das Beste
Auch kleine Räume lassen sich in echte Wohlfühl-Oasen verwandeln – und eignen sich hervorragend als Gästebad!
Alles aus einer Hand
Ein gutes Ergebnis setzt immer eine kompetente Beratung und Planung voraus: Unsere qualifizierten Experten liefern beides aus einer Hand. Dabei gehen sie auf Ihre Wünsche ein und unterbreiten Ihnen am Ende einen Vorschlag, der genau Ihren Vorstellungen entspricht.